- Home
- Departamento
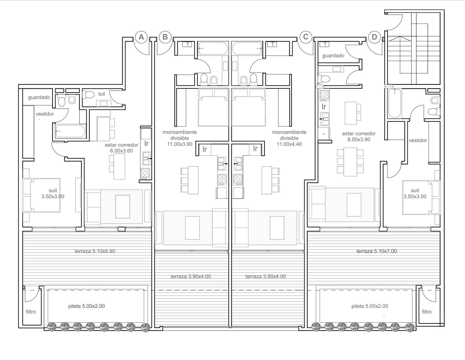
- Terrazas Bourdieu – 2A
- U$S170.000
Bourdieu 710 2A
Terrazas Bourdieu – 2A
Departamento
Ambientes2
Dormitorio1
Baño1
M285.8
Descripción
2A frente con piscina.
Amenities como pileta con solárium, Gimnasio, SUM con parrilla y fogón exterior. Hay igual cantidad de unidades y cocheras y la terraza cuenta con espacios individuales de huerta para cada unidad.
Especificaciones técnicas
Exterior: terminación con revestimiento acrílico texturado impermeable de acabado mate combinado con herrería en balcones. Ingreso principal al hall de entrada con cerramiento blindex de piso a techo y herrajes de acero inoxidable. El ingreso se encuentra elevado sobre el nivel vereda 0.72m al cual se accede por 4 escalones o mediante rampa para discapacitados con una pendiente de 8% (según norma).
Hall de entrada: Contará con pisos revestidos en porcelanato, iluminación led y circuito cerrado de cámaras online.
Aberturas: de PVC con DVH–doble vidrio hermético- con inhibidores UV y aislación térmica y acústica. Puertas interiores en MDF pantografiado y enchapado en láminas color blanco. Puertas de acceso de 0.95m de ancho ignifuga. ( blindada a precio diferenciado) La escalera tiene Puerta F60. Los frentes de placard tienen puertas corredizas de piso a techo. No se entregan interiores de placards.
Pisos: En las unidades se utilizará porcelanato simil madera, y en baños y toilets sectores con microalisado cementicio.
Instalaciones:
Instalación eléctrica: 100% eléctrico. El edificio no posee gas. Pre instalación de TV cable y pre instalación de aire acondicionado. Equipos frío calor, provisión de agua caliente por termotanque eléctrico de alta recuperación. Portero visor con pantalla a color, visor interno y cámara externa visión nocturna. No internet.
Instalación sanitaria: Artefactos ferrum tipo Bari o similar. –inodoro, bidet y bañera- vanitory con bacha de apoyo. Descarga para lavarropas y en departamentos de 3 y 4 ambientes descarga de lavavajilla. Griferías FV monocomando en baños y cocina.
Muebles de cocina: Diseñada con muebles de bajo y alto mesada en melanina blanca con mesada y barra en simil silestone. Cocina eléctrica de 4 hornallas tipo Domec CEXG plateada, 220V y puerta con visor.
J.C. Quintela Negocios Inmobiliarios deja constancia que todas las imagenes e informacion que se presentan son en caracter orientativo e ilustrativo, por lo tanto pueden sufrir modificaciones.
J.C. Quíntela Negocios Inmobiliarios deja constancia que todas las imágenes e información que se presentan son en carácter orientativo e ilustrativo, por lo tanto pueden sufrir modificaciones.
Detalles
OperaciónVenta
TipoDepartamento
Habitaciones1
Baños1
M285.8
ID de propiedad:5873013, 5873013, 5873013, 5873013
Ubicación
Bourdieu 710 2A
Servicios
Propiedades similares
Venta departamento 2 amb Av Libertador y Lavalle
U$S200.000
Departamento
- Camas: 4
- Baños: 1
- Garage: 1
- 58.64 M2



















